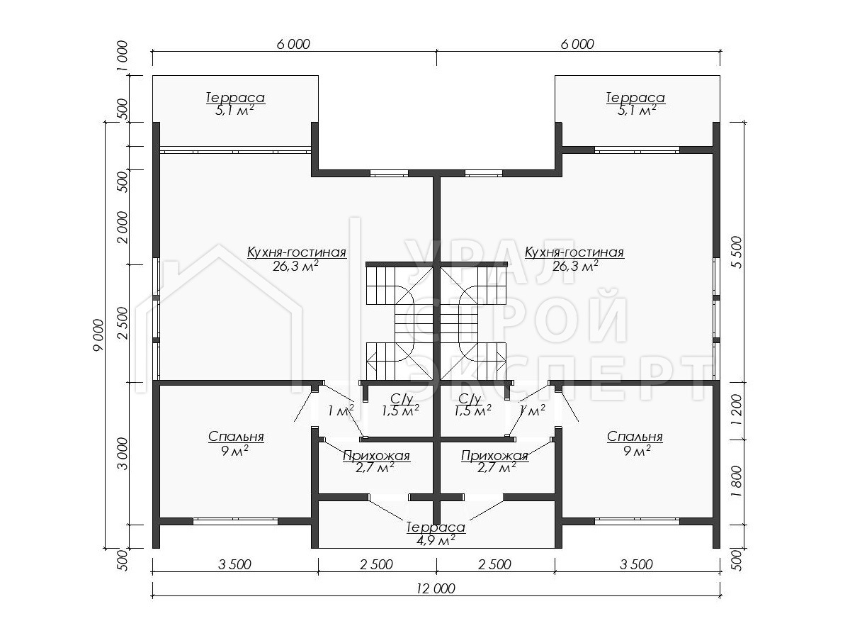
Проект дома Барнхаус ДБХ041
цена по запросу
Смотрите также:
цена по запросу
цена по запросу
цена по запросу
цена по запросу
